¡¡¡¡

 
¡¡CAPACITY & FEATURE
 
     
 

¡ñ THE CAPACITY OF OUR ELECTRIC WATERBATH VAPORIZERS RANGE FROM 30 KGS/HR TO 300KGS/HR.

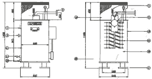
¡ñ HEATERS AND AUTO-THERMOSTATS ARE EXPLOSION PROOF STRUCTURES. A d1G2 ¡£

¡ñ WE USE SEAMLESS STAINLESS TUBES FOR THE HEATER. THE WATER TANK,LIQUID COILED TUBES,AND VAPOR TANK ARE STRICTLY ZINCGALVANIZED TREATED.THIS TREATMENT ASSURES OUR VAPORIZERS TO BECORROSION RESISTANT AND TO POSSESS A LONGER LIFE.

¡ñ OUR COMPANY INSISTS ON USING SEAMLESS TUBE AND SOCKETWELD FITTINGS TO ASSURE END-USERS' SAFETY. ALL OUR VAPORIZERS HAVE TO PASS A 30KGS/CM2 HIGH PRESSURE TEST.

¡ñ STAINLESS FLOAT VALVE PREVENTS LIQUID GAS FROM BEING CARRIED INTO THE OVEN THEOUGH THE PIPING.

¡ñ SPECIALLY DESIGNED LIQUID DRAIN VALVE CAN QUICKLY EXPEL THE ACCUMULATED LIQUED RESIDUE FROM THE VAPORIZER.

¡ñ SAFETY VALVE ON THE VAPOR SIDE CAN AUTOMATICALLY SHUT OFF AFTER RELEASING OVER-PRESSURE GAS.

¡ñ GLASS FIBER INSULATION OF 25MM IN THICKNESS KEEPS THE TEMPERATURE OF THE WATER TANK STEADY AND REDUCES THE CONSUMPTION OF ELECTRICITY.

¡ñ OUR VAPORIZERS PROVIDE YOU WITH AN INTEGRAL, COMPACT UNIT WHICH PRODUCES ADRY AND WARM VAPOR AND IS ABLE TO SUCCESSFULLY CONTROL INFINITE TURNDOWN.

 
     
 
¡¡INSTALLATION & MAINTENANCE
 
     
 

¡ñ VAPORIZERS SHOULD BE INSTALLED:1.IN WINDY SURROUNDINGS. 2. 8 METERS AWAY FROM OVEN,ELECTRICAL WIRE OR SWITCHES AS WELL AS ANY NON-EXPLOSION FUNCTION OF ELECTRICAL APPARATUS. 3. ON A SOLID AND CONCRETE FOUNDATION.

¡ñ PLEASE CHECK IN ADVANCE THE FOLLOWING BEFORE USING: 1. THE WATER LEVEL IS BETWEEN THE HIGH-LOW INDICATOR ON THE LEVEL GAUGE. 2. THE TEMPERATURE HAS REACHED BETWEEN 70¡ã-80¡æ.3. THE LIQUID AND VAPOR RESIDUE FROM THE DRAIN VALVE HAS BEEN RELEASED.

¡ñ CHANGE THE WATER AT LEAST EVERY TWO MONTHS.

¡ñ KEEP THE SWITCH OF THE SAFETY VALVE OPEN.

 
     
 
 
¡¡SPECIFICATIONS
 
MODEL CAPACITY
£¨KG/HR£©
HEATER
£¨KW£©

INLET
(mm)

OUTLET
(mm)
DIMENSION(mm)
W H
SYL-EV-30 30 6 15 20 400 1050
SYL-EV-50 50 8 15 20 400 1050
SYL-EV-100 100 14 20 25 500 1250
SYL-EV-150 150 18 20 25 500 1250
SYL-EV-200 200 28 25 40 600 1450
SYL-EV-300 300 40 25 40 600 1500
SYL-EV-400 400 56 40 50 760 1650
SYL-EV-500 500 66 40 50 760 1650
SYL-EV-600 600 75 40 50 850 1750
SYL-EV-700 700 84 40 50 850 1750
SYL-EV-800 800 112 50 50 1000 1860
SYL-EV-1000 1000 128 50 50 1000 1860
 
¡¡STANDARD CONFIGURATIONS
 
AMPLIFY
 
AMPLIFY