中国燃气设备网
  首 页 公司招聘 企业名录 企业之窗 联系我们
优 质、 服 务 、信 用 !经营单位:深圳亚威华公司 销售部电话:0755-25887166,25887236 传真:25887232
 
 
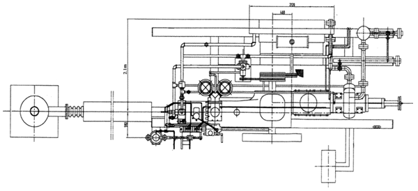
国产ZTY85系列低速整体式天然气压缩机
 
 特点
 
     
 

非增压、低速、整体、撬装、固定式、以天然气为燃料;
机组的额定功率仅为最大功率65%,因此可连续、满负荷运行;
发动机与压缩机共用一个机身、一根曲轴,呈对称平衡布置,振动小;
配套系统完善,冷却系统为闭式循环,有可靠的安全放空和排污系统;
仪表自动控制系统完善可靠,能实现机组超速、超压、超温、超振动、超液位等全面自动保护,可实现无人值班;
机组自成体系,不需外供电源,就可实现机组的正常运行;
机组安装方便,操作简单,坚固、耐用、易损失少、维修量少。

 
     
 
 
 
 主要参数
 
额定功率
(KW)
额定转速
(rpm)
活塞杆最大
允许载荷(N)
最低稳定
转速(rpm)
动力缸缸
数(in)
压缩缸缸
径(in)
压缩缸冲
程(in)
压缩缸缸数
压缩缸缸径(in)
85
360
97861
250
1
13.25"
16"
1
3"-28"
 
压缩缸冲
程(in)
压缩
级数
气缸作用
形式
燃气消耗率
(Nm3/KW.h)
排气温度
(℃)
机组外形尺寸
(m)
主机外形尺寸
(m)
机组重量
(t)
启动方式
11"
1-3
单\双作用
0.30
400/50
8×3×6
6.6×1.2×2.5
13
缸头直接启动,用
1.5-2.0Mpa压缩气
直接推动活塞,
启动气源可是天
然气,也可是压
缩空气。
 
公司简介 | 人才招聘 | 联系方法 | 请您留言 | 友情链接 | ENGLISH
销售部:0755-25887166 / 236 / 548 / 521 / 237
中国燃气设备网 ccgas.net 2000.版权所有 深圳亚威华公司
如您有任何意见或建议请联络网站管理员: ywh1995@126.com