中国燃气设备网
  首 页 公司招聘 企业名录 企业之窗 联系我们
优 质、 服 务 、信 用 !经营单位:深圳亚威华公司 销售部电话:0755-25887166,25887236 传真:25887232
 
 
高特R50系列调压器
 
 产品简介
 
 技术参数
     
       
  高特R50系列圆顶负荷式调压器是具有广泛应适用性的高压调压器,其整体设计为ANSI1500压力等级,具有高流通能力,高可靠性,出口压力范围宽等。  
       
 
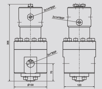
连接尺寸
入口/出口
BSP 1”
供气/排气
BSP 1/4”
阀体尺寸和端口连接型式
DN 1/2”× 1”BSP
最小/最大允许温度(TS)
-20℃/+60℃
最大进、出口压力
25Mpa
额定流量
2000Nm3/h
     
 产品特点
 
 工作原理 
     
     
   >> 极低的维护成本
   > 维护周期长
   > 装拆简便
   - 专利阀体可在线维护
   - 阀座密封圈检查简单方便
   > 维修备件极少
  >> 控制性能优异
   - 气室体积大
   - 调节精度高 (≤ 1%)
   - 关闭压力低 (≤ 2.5%)
   - 响应快,稳定性好
   - 出口压力范围宽
  >> 适应流量范围宽
   - 适应流量从几百方到两千方
  >> 快捷的供货周期
   - 常规型号空运四周内发货
  >> 产品安全可靠
   - 产品整体为250公斤压力等级设计
 
     
 
 
     
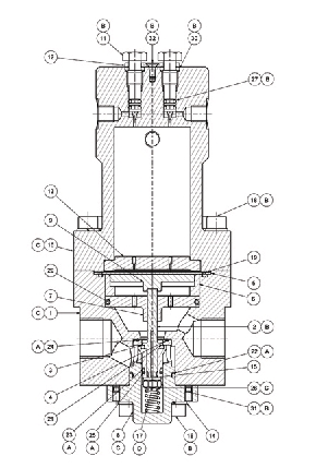
  打开顶腔上部针阀组(11)的进口针阀。使上游气体通
过针阀进入顶腔(10),提高顶腔负荷压力,并作用于
皮膜(5)上,从而提高出口设定压力,打开针阀组(11)
的出口针阀,可以通过放散降低顶腔(10)内的负荷压
力,从而减小出口压力设定值。进出口针阀配台使用
可以达到设定出口压力的目的。
 
     
 
 外形尺寸
 
 
 
 常用配件表
名称
代码
位置号
皮膜
9301000160470
5
○型圈
8401012303206
21
○型圈
8401031303218
22
○型圈
8401012402112
23
○型圈
8401022001020
24
○型圈
8440012402112
25
 
公司简介 | 人才招聘 | 联系方法 | 请您留言 | 友情链接 | ENGLISH
销售部:0755-25887166 / 236 / 548 / 521 / 237
中国燃气设备网 ccgas.net 2000.版权所有 深圳亚威华公司
如您有任何意见或建议请联络网站管理员: ywh1995@126.com