 |

全自动燃油/气常压热水锅炉
|
● 先进的技术
采用欧洲最先进的制热技术,本体采用中心回燃技术,紊流传
热、逆流传热、动态传热、大炉膛、薄水套优化结构、冷起动
快,选用世界名牌燃烧机
● 优质的材料
采用高于国家标准的材料,炉胆、锅筒、烟管选用锅炉专用材料
● 精湛的工艺
采用美国林肯焊机、CO2气体保护焊机、坦弧自动焊机焊接,本体
材料经磷化处理,外包板采用粉末喷涂处理
● 关注环保
高效燃烧,大炉膛结构,有效抑制NOX生成,噪声、烟尘排放优于
欧洲标准
● 一机多用
与换热器配合使用,既可用暖气片采暖,又可以为中央空调系统
提供热水,同时还可以提供生活洗浴用水
● 人性化控制
中文液晶显示,可预留通信接口,与楼宇监控联接,多机联控 |
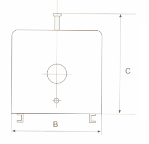
| 外形尺寸表 |
|
|
A |
B |
C |
D |
E |
F |
G |
H |
I |
J |
1
出水口 |
2
出水口 |
3
烟囱口 |
4
排污口 |
5
通气口 |
|
CWNS-0.06/0.09 |
1330 |
828 |
983 |
893 |
50 |
710 |
310 |
100 |
513 |
355 |
DN25 |
DN25 |
θ160 |
1" |
DN50 |
|
CWNS-0.12/0.17 |
1570 |
880 |
1078 |
978 |
50 |
950 |
310 |
100 |
550 |
565 |
DN32 |
DN32 |
θ220 |
1" |
DN65 |
|
CWNS-0.23/0.29 |
1795 |
1030 |
1228 |
1128 |
50 |
1000 |
435 |
100 |
805 |
500 |
DN40 |
DN40 |
θ240 |
1" |
DN65 |
|
CWNS-0.41/0.47 |
2195 |
1232 |
1490 |
1390 |
65 |
1300 |
435 |
100 |
805 |
850 |
DN50 |
DN50 |
θ250 |
1.5" |
DN80 |
|
CWNS-0.58/0.70 |
2435 |
1334 |
1730 |
1630 |
85 |
1400 |
335 |
100 |
805 |
650 |
DN65 |
DN65 |
θ300 |
1.5" |
DN100 |
|
CWNS-0.81/0.93 |
2520 |
1455 |
1688 |
1588 |
96 |
1750 |
342 |
100 |
805 |
650 |
DN80 |
DN80 |
θ380 |
1.5" |
DN125 |
|
CWNS-1.16/1.45 |
3410 |
1832 |
1940 |
1840 |
80 |
2380 |
535 |
100 |
1060 |
1190 |
DN100 |
DN100 |
θ400 |
1.5" |
DN125 |
|
CWNS-1.75/2.04 |
3720 |
2010 |
2260 |
2160 |
110 |
2700 |
540 |
100 |
1195 |
950 |
DN125 |
DN125 |
θ450 |
1.5" |
DN150 |
|
CWNS-2.33/2.91 |
4306 |
2164 |
2454 |
2354 |
100 |
3132 |
592 |
100 |
1312 |
1571 |
DN150 |
DN150 |
θ500 |
2" |
DN175 |
|
| 性能参数表 |
名称 |
|
CWNS-
0.06 |
CWNS-
0.09 |
CWNS-
0.12 |
CWNS-
0.17 |
CWNS-
0.23 |
CWNS-
0.29 |
CWNS-
0.41 |
CWNS-
0.47 |
CWNS-
0.58 |
CWNS-
0.70 |
CWNS-
0.81 |
CWNS-
0.93 |
CWNS-
1.16 |
CWNS-
1.45 |
CWNS-
1.75 |
CWNS-
2.04 |
CWNS-
2.33 |
CWNS-
2.91 |
|
功率 |
kW |
58 |
93 |
116 |
174 |
232 |
291 |
407 |
465 |
581 |
698 |
814 |
930 |
1163 |
1454 |
1745 |
2035 |
2326 |
2907 |
|
万
kcal/h |
5 |
8 |
10 |
15 |
20 |
25 |
35 |
40 |
50 |
60 |
70 |
80 |
100 |
125 |
150 |
175 |
200 |
250 |
|
热功率 |
90-93.0% |
|
用电量
220V
/380V |
燃油
燃气 |
kW |
0.12 |
0.12 |
0.20 |
0.30 |
0.40 |
0.46 |
0.65 |
1.20 |
1.20 |
1.20 |
1.20 |
1.50 |
1.50 |
2.30 |
3.20 |
4.00 |
7.60 |
7.60 |
|
0.12 |
0.13 |
0.30 |
0.30 |
0.40 |
0.46 |
0.67 |
1.20 |
1.20 |
1.20 |
1.30 |
1.60 |
2.30 |
2.50 |
3.10 |
7.60 |
7.60 |
9.20 |
|
净量 |
kg |
360 |
360 |
650 |
650 |
1120 |
1120 |
1600 |
1600 |
1820 |
1820 |
2160 |
2160 |
4200 |
4200 |
5100 |
5100 |
6100 |
6100 |
|
水容量 |
L |
150 |
150 |
190 |
190 |
255 |
255 |
595 |
595 |
657 |
657 |
1258 |
1258 |
1700 |
1700 |
2358 |
2358 |
3226 |
3226 |
|
燃料
最大
消耗
量 |
轻油 |
kg/h |
5.5 |
8.9 |
11.2 |
16.8 |
22.3 |
27.8 |
39.0 |
44.5 |
55.7 |
66.6 |
78.0 |
89.0 |
111.3 |
139.4 |
167 |
195 |
223 |
279 |
|
重油 |
5.8 |
9.4 |
11.7 |
17.6 |
23.4 |
29.2 |
41.0 |
46.8 |
58.5 |
70.2 |
81.9 |
93.6 |
117.2 |
146.5 |
176 |
205 |
234 |
293 |
|
天然气 |
Nm3/h |
6.6 |
10.6 |
13.3 |
20.0 |
26.6 |
33.2 |
46.4 |
52.8 |
66.3 |
79.2 |
92.9 |
106.1 |
132.7 |
165.8 |
199 |
232 |
265 |
332 |
|
城市
煤气 |
15.4 |
24.6 |
30.8 |
46.2 |
61.6 |
77.0 |
107.8 |
123.2 |
154.0 |
184.8 |
215.6 |
246.4 |
308.0 |
385.0 |
462 |
539 |
616 |
770 |
|
燃料接口
(轻油) |
|
DN15 |
DN20 |
DN25 |
|
热水产量
△t=20℃ |
t/h |
2.5 |
4 |
5 |
7.5 |
10 |
12.5 |
17.5 |
20 |
25 |
30 |
35 |
40 |
50 |
62.5 |
75 |
87 |
100 |
125 |
|
  |
★ 各地使用燃气的种类、热值及供气压力不同,燃气接口将有所不同
★ 燃料消耗量均按轻油热值10000 kcal/kg,重热油值9500 kcal/kg,天然气热值8400kcal/Nm3,管道煤气热值3600kcal/Nm3计
算。热水产量以设计温度供水90℃,进水70℃计算。
★ 本公司奉行不断创新及完善自我原则,以上数据如有改动恕不另行通知。若需要了解更多资料,请与我公司销售部联系。 |
 |
 |