中国燃气设备网
  首 页 公司招聘 企业名录 企业之窗 联系我们
优 质、 服 务 、信 用 !经营单位:深圳亚威华公司 销售部电话:0755-25887166,25887236 传真:25887232
 
 
 规范
 
     
  公称通径:DN 32~100mm
公称压力:PN 6.4MPa
最高使用工作压力:2.5MPa
强度试验压力:9.6MPa
适用介质:液空、液氧、液氮、液态天然气等低温介质
驱动方式:气动
气动压力:0.4~0.6MPa
易熔塞熔融温度:70℃±5℃
适用温度:-196℃+75℃
 
     
 
 材质
 
     
阀体:ZG0Cr18N19
球体、阀杆:不锈钢
填料、密封圈:增强聚四氟乙烯、膨胀石墨、PFA
 
 


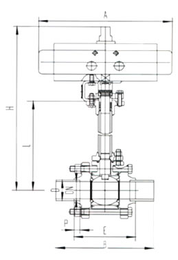
 外形与安装连接尺寸
 
产品代号
尺     寸(mm)
重量(Kg)
L
D
DN
H
E
B
A
P
355DQ32
190
38
32
425
110
280
355
15
26
355DQ40
195
49
40
430
126
296
355
15
30
355DQ50
220
61
50
509
165
335
355
15
36
355DQ65
250
74
65
520
180
350
380
15
45
355DQ80
310
90
80
580
220
390
487
15
50
355DQ100
390
108
100
794
305
475
487
15
58
 
公司简介 | 人才招聘 | 联系方法 | 请您留言 | 友情链接 | ENGLISH
销售部:0755-25887166 / 236 / 548 / 521 / 237
中国燃气设备网 ccgas.net 2000.版权所有 深圳亚威华公司
如您有任何意见或建议请联络网站管理员: ywh1995@126.com